中古艇情報 その他メーカー(国内) 作業船 NO,230710 バージクレーン{住友SF1500HDS}200t1989y+プッシャー(19t)2基1994y
- ホーム
- 中古艇情報 その他メーカー(国内) 作業船 NO,230710 バージクレーン{住友SF1500HDS}200t1989y+プッシャー(19t)2基1994y
船艇詳細
SHIP DETAIL
中古艇情報 その他メーカー(国内) 作業船 NO,230710 バージクレーン{住友SF1500HDS}200t1989y+プッシャー(19t)2基1994y
基本仕様
- タイプ名
- -
- 全長
- 5000.0ft
- 全幅
- 2000.0m
- 全深
- 350.0m
- 登録
- 1989/H1
- 船検
- -
- エンジン
- YANMAR
- アワーメーター
- -
- 推進力形式
- 船内機
- 出力
- 1600.0HP × 2基
- 巡航速度
- -
- 最高速度
- -
- 燃料種別
- その他
- 燃料タンク
- -
- 清水タンク
- -
- 免許種別
- 1級
- 保管方法
- 係留
- 定員
- -
- 船底塗装
- -
- 航行区域
- -
装備
- 航海灯
- トイレ
- GPS
- 魚探
- ギャレー
- 冷蔵庫
- 電子レンジ
- エアコン
- レーダー
- 発電機
- オートパイロット
- TV
- 無線機
- 風向・風速計
船艇本体価格
SOLD
掲載店舗情報
- ショップ名
- 五島マリーン
- 住所
- 長崎県五島市三尾野2-5-23
- 電話番号
- 0959-74-2173
- FAX番号
- 0959-74-2733
- 営業時間
- 09:00〜18:00
- 定休日
- 日曜
- ホームページ
- http://www.goto-marine.com/

コメント
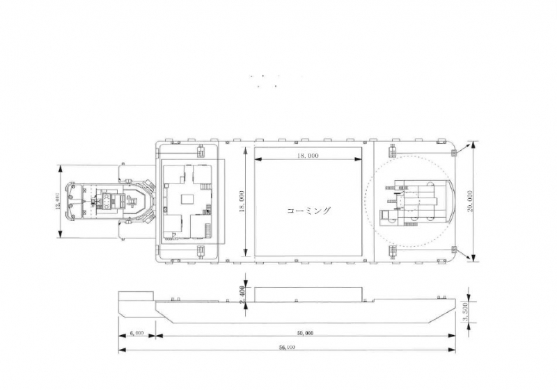
*バージ:(50.00x20.00x3.50)1800t 1989y。
*クレーン:住友{SF1500HDS}。ブーム=36.576m・200t吊り。有効(令和3年11月。
*プッシャー*圧着パット付き(押しTUG)19t。ヤンマー(6N165-EN)・有効(令和6年1月)。
船艇管理番号:230710